Mon - Fri: 9.00 - 18:00 Sat: 9:00 - 16:00    8 High Street, Lutterworth, Leics LE17 4AD     01455 559200

Gilmorton Road, Lutterworth - £250,000 Under Offer


Property Details

4 2 1

Tenure: Freehold

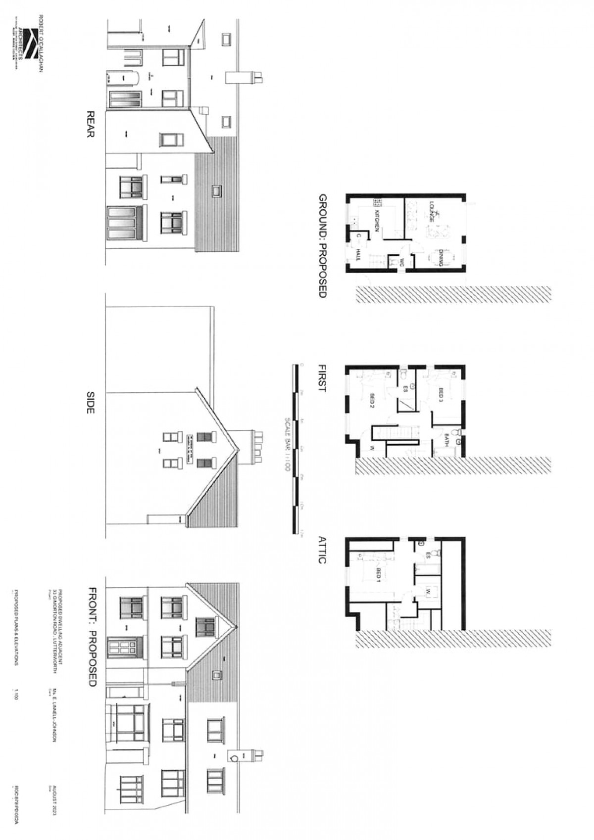
"Located within easy reach of the town centre this deceptively spacious character property enjoys a generous corner plot position with the potential for further development Set over three floors the accommodation comprises of an entrance hall, lounge, dining room, breakfast kitchen, rear lobby/utility and w.c. The first floor includes the principal bedroom, bedroom two, bedroom four and a shower room. The second floor provides the third bedroom and a good size landing/study area. Outside, a block paved side driveway provides ample off road parking leading to a single detached garage. Whilst to the side is a hedgerow enclosed garden with an extensive lawned area, planted bed, paved patio seating area and garden shed."